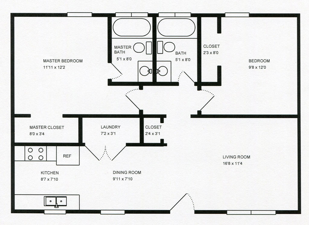
Two‑bedroom, two‑bath
864 square feet